Používame cookies

Súbory cookie a ďalšie technológie sledovania používame na zlepšenie vášho zážitku z prehliadania našich webových stránok, na to, aby sme vám zobrazovali prispôsobený obsah a cielené reklamy, na analýzu návštevnosti našich webových stránok a na pochopenie toho, odkiaľ naši návštevníci prichádzajú. Viac info

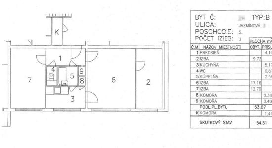
Praktický 3- izb. byt (54,51 m2) / Jazmínová / Košice - sídlisko Terasa | Košice-Západ

  Ľutujeme táto ponuka už nieje aktuálna.

Ulica: Jazmínová
Počet izieb: 3
Celková výmera: 54 m2

Popis nehnuteľnosti

Spoločnosť PARTNERS REAL Vám v exkluzívnom zastúpení ponúka na predaj 3 - izbový byt situovaný v jednej z najobľúbenejších Košických lokalít, sídlisko Terasa - ul. Jazmínová.

Výmera bytu 54,51 m2, z toho 1,44 m2 komora situovaná hneď vedľa bytu, vďaka čomu získate dodatočný úložný priestor. Nachádza sa na 5. poschodí zo 7. a jeho orientácia je na Západnú stranu. Praktická dispozícia tohto bytu Vám ponúka 2 samostatné, nepriechodné izby, priestrannú obývačku, kuchyňu, kúpeľňu s vaňou a oddelené wc. V celom byte sú osadené plastové okná a kúpeľňa bola rekonštruovaná s funkčnou zmenou dispozície, kedy sa do nej vchádza iba zo vstupnej chodby (nie z kuchyne) a zväčšila sa o priestor komory, ktorá bola prístupná z kuchyne. Inak je byt v pôvodnom stave s umakartovým jadrom, čo je výhodou pre tých, ktorý si svoje vysnívané bývanie túžia prerobiť a zariadiť podľa vlastných predstáv a preferencií. Predáva sa už kompletne vyprataný, bez kuchynskej linky, čo Vám urýchli a zjednoduší proces vypratávania a rekonštrukcie. Byt je bez balkóna.

Panelový bytový dom prešiel revitalizáciou, kde došlo k zatepleniu obvodového plášťa, osadený bol nový, moderný výťah a taktiež boli vymenené stúpacie rozvody. Vďaka výbornej polohe Vám ponúka kompletnú občiansku vybavenosť sídliska Terasa, neďaleko sa nachádza materská a základná škola Bernolákova, stredná Športová škola, OC Galéria, zastávky mhd , Zuzkin park s výbehom pre psíkov a mnoho ďalšieho.

Energetický certifikát: B

Cena nehnuteľnosti je 100.000 € (vrátane všetkých poplatkov spojených s prevodom vlastníckeho práva pri financovaní hotovosťou).

ZOBRAZIŤ VIAC
Lokalita: Košice-Západ
Druh: Byty
Typ: Predaj
Typ bytu: 3-izbový byt
Iné:

Informatívna úverová kalkulačka

Vlastnosti

Vlastníctvo:
osobné
Stav:
pôvodný
Úžitková plocha:
54.51 m2
Poschodie:
5
Počet podlaží:
7
Počet izieb:
3
Balkón:
nie
Počet kúpeľní:
1
Výťah:
áno
Energetický certifikát:
B
Zateplený objekt:
áno
Terasa:
nie

Pozrieť na mape

Podobné nehnuteľnosti