Používame cookies

Súbory cookie a ďalšie technológie sledovania používame na zlepšenie vášho zážitku z prehliadania našich webových stránok, na to, aby sme vám zobrazovali prispôsobený obsah a cielené reklamy, na analýzu návštevnosti našich webových stránok a na pochopenie toho, odkiaľ naši návštevníci prichádzajú. Viac info

Pekný dom na krásnom mieste pod lesom, pozemok 2165m2, predaj, Medzev | Medzev

Rezervované
Ulica: Revolučná
Celková výmera: 225 m2
Cena Rezervované

Popis nehnuteľnosti

REZERVOVANÝ. Vladimír Gaži a Partnersreal Vám v exkluzívnom zastúpení ponúka na predaj dva domy na rozľahlom pozemku pod lesom, situované na začiatku obce Medzev, Košice – okolie, na ulici Revolučná. Video k danej nehnuteľnosti tu: https://youtu.be/6mdzSGVNLjM

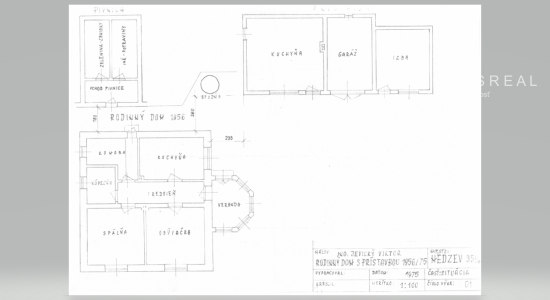
Nehnuteľnosti tvorí hlavný domček so zastavanou plochou 106m, hosťovský domček 74m2, dve do svahu zapustené pivnice, na rozľahlom pozemku 2165m2.

Domy boli postavené okolo roku 1975, sú murované z výborného a trvácneho materiálu sopečný Tuf, s hrúbkou múrov okolo 50cm s tehlovými priečkami.

Strecha hlavného domu má perfektný zdravý krov so strešnou krytinou z eternitu, veranda s plechovou krytinou. Hosťovský domček má krytinu z ošetreného  pozinkovaného plechu.  

Oba domčeky sú vo výbornom technickom stave, s láskou udržiavané a donedávna plne obývané. Napriek veku nehnuteľnosti majú bezchybný stav a nevyžadujú si rozsiahlu rekonštrukciu.

Hlavný dom je tvorený vstupnou verandou, chodbou, s 3 nepriechodnými izbami, komorou, kúpeľňou s wc. V podkroví je k dispozícia 4 izba v minulosti slúžiaca ako študovňa.

Hosťovský dom je tvorený garážou, kotolňou, letnou kuchyňou s jedálňou, kúpeľňou a samostatnou spálňou s umývadlom. Podkrovie je nevyužité, prázdne.

K dispozícií sú všetky inžinierske siete, obecná voda, kanalizácia, elektrina, plyn a optický internet. Taktiež je možné užívať vlastnú vodu z kopanej studne.

Kúrenie v dome je zabezpečené prostredníctvom centrálneho plynového kotla do radiátorov plus nová kachľová pec.  Okná sú dvojité, drevené bez nutnosti výmeny.

Dom má výborné tepelnoizolačné vlastnosti vďaka materiálu sopečný Tuf v minulosti prideľovaný baníkom.

Pozemok je rovinatý na konci do svahu pod les, oplotený, s vydláždeným vstupom pre autá. Má ideálny tvar nepravidelného obdĺžnika s krásnym výhľadom na okolitú prírodu a obec.

Celkový dojem z nehnuteľnosti je veľmi priaznivý, najmä vďaka kvalitnej výstavbe v minulosti,  ktorá zabezpečí osvedčenú dlhovekosť stavby.

Cena nehnuteľnosti je 110000,-€ vrátane poplatkov spojených s prevodom vlastníctva a profesionálny servis. V prípade záujmu kontaktujte: Vladimír Gaži, Partnersreal s.r.o, Urbánkova 70, Košice. Tel: 0948757353, email: gazi@partnersreal.sk

 

ZOBRAZIŤ VIAC
Lokalita: Medzev
Druh: Domy
Typ: Predaj
Typ domu: Rodinný dom
Iné:

Video

Informatívna úverová kalkulačka

Vlastnosti

Status:
rezervované
Vlastníctvo:
osobné
Plocha pozemku:
2165 m2
Typ zeme:
rovina
Teritórium:
Intravilán
Šírka pozemku:
40 m
Dĺžka pozemku:
40 m
Úžitková plocha:
225 m2
Zastavaná plocha:
180 m2
Stav:
pôvodný stav
Počet izieb:
5
Energetický certifikát:
žiadne
Energetická náročnosť budovy:
Klasické materiály
Garáž:
áno
Pivnica:
áno
Verejné vonkajšie parkovanie:
áno
Špajza:
áno
Sklad:
áno
Dielňa:
áno
Rok výstavby:
1975
Rok kolaudácie:
1975
Počet poschodí od prízemia vyššie:
1
Celková plocha:
225 m2
Počet garáží:
1
Pivnica plocha:
15 m2
Počet pivníc:
2
Orientácia:
juhozápad
Inžinierske siete:
áno
Voda:
áno
Elektrika:
áno
Plyn:
áno
Kanalizácia:
áno
Voda - na pozemku:
áno
Voda - na pozemku - vodný zdroj:
áno
Voda - na pozemku - studňa:
áno
Elektrika - na pozemku:
áno
Elektrika - na pozemku - 230 V:
áno
Elektrika - na pozemku - 380 V:
áno
Plyn - na pozemku:
áno
Kanalizácia - na pozemku - kanalizácia:
áno
Vykurovanie - centrálne:
áno
Vykurovanie - lokálne:
áno
Internet:
áno
Optická sieť:
áno

Pozrieť na mape

Podobné nehnuteľnosti