
5 izbový rodinný dom 125m2, pozemok 765m2, predaj, Forró, Maďarsko
- 147 m2
Celková výmera: | 116 m2 |
---|---|
Cena | Cena v RK |
Vladimír Gaži a Partnersreal Vám ponúka na predaj kvalitný radový dom, situovaný v mestskej časti Košice - Krásna, pri neďalekom jazere, vzdialený len 8km od historického centra mesta Košice.
Jedná sa o 6 ročnú obývanú novostavbu, v slepej ulici, na skok od centra mesta s občianskou vybavenosťou priľahlého sídliska nad Jazerom.
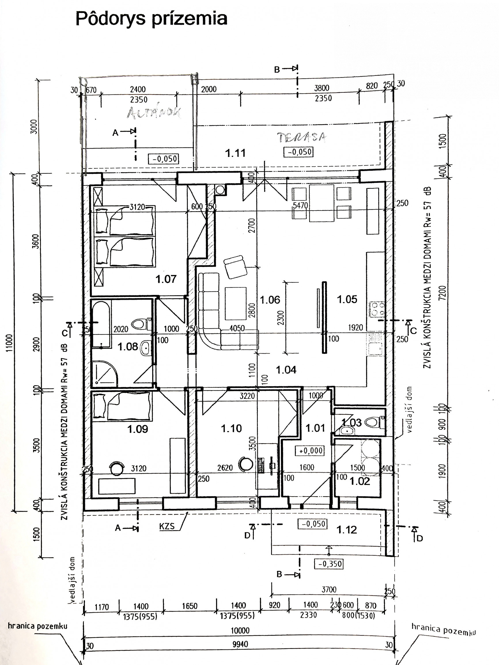
Hrubá stavba domu bola postavená v roku 2019, obývaná od roku 2020.
Dom :
Pozemok :
s altánkom a betónový záhradný domček
Dispozícia:
Technické riešenia:
Aktuálne nové dopravné spojenie na R4 (obchvat) od centra KE, môžete sa tak vyhnúť prípadným zápcham do centra.
🔥video nehnuteľnosti🔥
Odkaz na link videa je tu:
https://youtu.be/rA4P78sYUhA
Ak hľadáte už hotové mestské bývanie v rodinnom dome, s nenáročnou údržbou, možno tento radový domček padne do oka práve Vám.
Cena nehnuteľnosti je dohodou. V prípade záujmu kontaktujte: Vladimír Gaži, Partnersreal s.r.o, Urbánkova 70, 04001 Košice. Tel: 0948757353, email: gazi@partnersreal.sk
Lokalita: | Košice-Krásna |
---|---|
Druh: | Domy |
Typ: | Predaj |
Typ domu: | Rodinný dom |
Iné: |